总建面增超2500平方米!济宁一医院升级改造项目建设工程设计方案调整
扫描到手机,新闻随时看
扫一扫,用手机看文章
更加方便分享给朋友
近日,搜狐网济宁小编从济宁市自然资源和规划局获悉:济宁肿瘤医院院区升级改造项目建设工程设计方案调整及建设工程规划许可变更批前公告发布,详情如下。

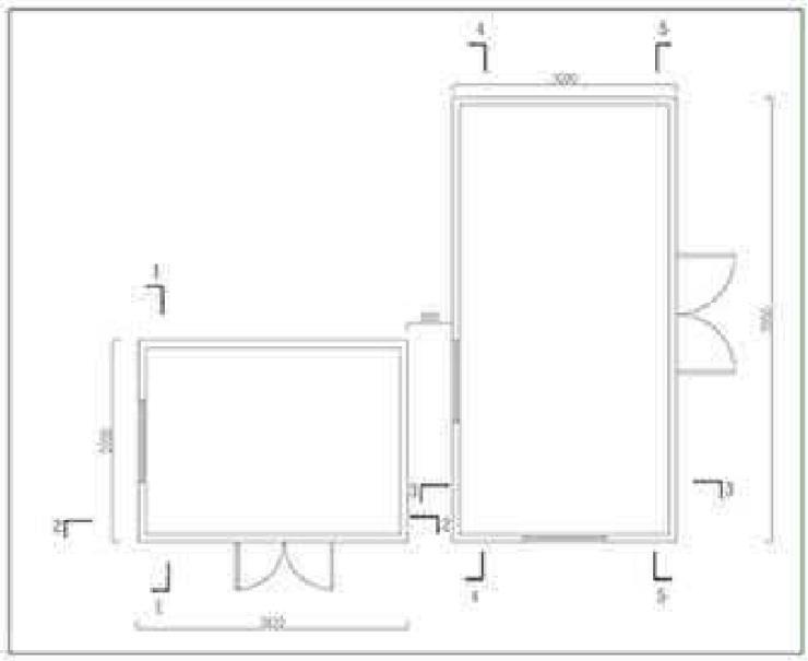
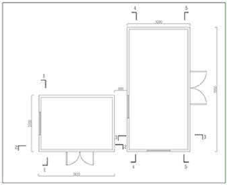
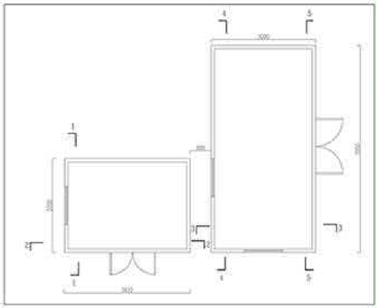
调整后总平面图
项目基本情况
项目名称:济宁肿瘤医院院区升级改造项目
建设单位:济宁肿瘤医院
建设位置:任城大道以南,建设路以西
调整内容:
建设工程设计方案调整:
1.原批准的设计方案:总建筑面积49707.6㎡,其中,地上建筑面积42295.6㎡,地下建筑面积7412㎡。拟调整设计方案:总建筑面积52292.94㎡,其中,地上建筑面积45276.31㎡,地下建筑面积7016.63㎡。调整变化情况:总建筑面积增加了2585.34㎡,其中,地上建筑面积增加了2980.71㎡,地下建筑面积减少了395.37㎡。容积率由1.85调整为1.98,建筑密度由16.3%调整为21.28%,绿地率由35.0%调整为30.0%。
2.取消扩建机械车库2137.8㎡、传达室20㎡、扩建一体化处理池135㎡、扩建污水调节池65㎡四项建设内容;院区北侧新增30㎡污水处理站;现状TOMO设备房建筑面积586.57㎡、配电室建筑面积79.21㎡、餐厅用房建筑面积368.46㎡、门诊楼建筑面积3010.22㎡保留。
3.病房楼调整前总建筑面积47349.8㎡,其中,地上建筑面积40137.8㎡,地下建筑面积7212㎡。调整后:总建筑面积48218.48㎡,其中,地上建筑面积41201.85㎡,地下建筑面积7016.63㎡。
建设工程规划许可变更:
原建设工程规划许可证(建字第37082015-R014号、建字第3708-R202109-07号)病房楼建筑面积增加868.68㎡,新增30㎡污水处理站;传达室、扩建机械停车库、扩建一体化处理池、扩建污水调节池均取消建设。

调整后鸟瞰图

调整后病房楼单体效果图

调整后病房楼五层平面

调整后污水处理机房平面
责任编辑:袁培淞
声明:本文由入驻焦点开放平台的作者撰写,除焦点官方账号外,观点仅代表作者本人,不代表焦点立场。


