占地约21亩,设计居住176户!济宁城西新商住项目获批
搜狐焦点济宁房产网 2022-04-11 12:14:37
用手机看
扫描到手机,新闻随时看
扫一扫,用手机看文章
更加方便分享给朋友
济宁城西新添商住项目!近日,搜狐网济宁小编在相关渠道获悉:九欢玺项目的规划方案及建筑方案获批前公示,具体参数如下。
济宁城西新添商住项目!近日,搜狐网济宁小编在相关渠道获悉:九欢玺项目的规划方案及建筑方案获批前公示,具体参数如下。

总平面图
工程概况
项目名称:九欢玺
建设单位:九巨龙房地产开发集团有限公司
项目位置:南张巷北、亿丰二期西
主要技术经济指标
项目规划建设用地面积14101㎡(约21亩);总建筑面积:29768㎡;其中地上建筑面积为21688㎡、地下建筑面积为8080㎡;容积率为1.50;建筑密度25%;绿地率35%;计划居住户(套)数为176户(套),居住人数约563人(按3.2人/户预算);建筑类型包括住宅、商业、养老、公共配套设施等;规划机动车停车位184个,非机动车位217个。


技术经济指标

日照分析图

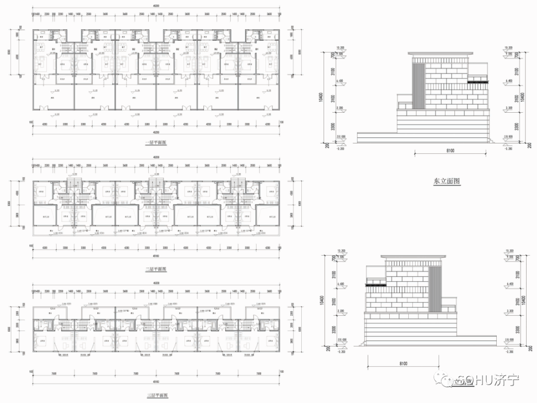
平面图、立面图

效果图

鸟瞰图
责任编辑:刘辉
声明:本文由入驻焦点开放平台的作者撰写,除焦点官方账号外,观点仅代表作者本人,不代表焦点立场。


