顶层叠墅—碧桂园YJ331济州府景林堂,空中叠墅·星空露台
扫描到手机,新闻随时看
扫一扫,用手机看文章
更加方便分享给朋友
顶层复式生活
难以抗拒的空中墅居体验
人生,需要高度,
才能看见更美风景,
碧桂园·济州府以高度定义层次,
致敬人生境界,
以奢阔尺度,将生活与繁杂拉开距离,
YJ331景林堂
建面约198-209㎡全装叠墅
以顶层复式格局,
演绎人生顶层品味,
述说属于济宁的“复”贵生活!
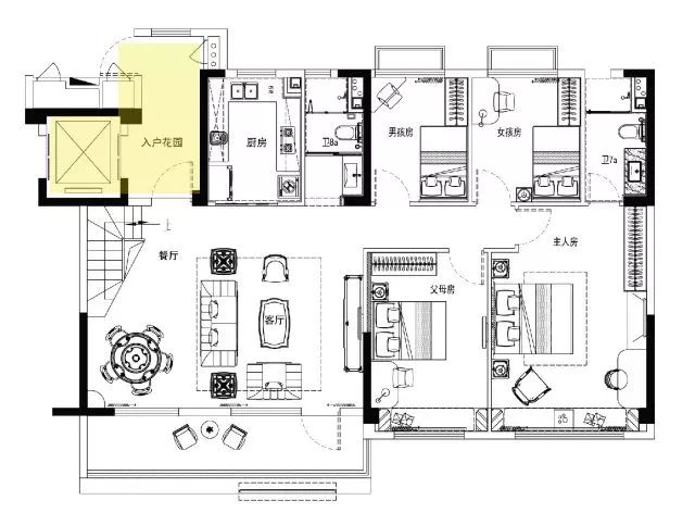
【顶复一层3D户型图】
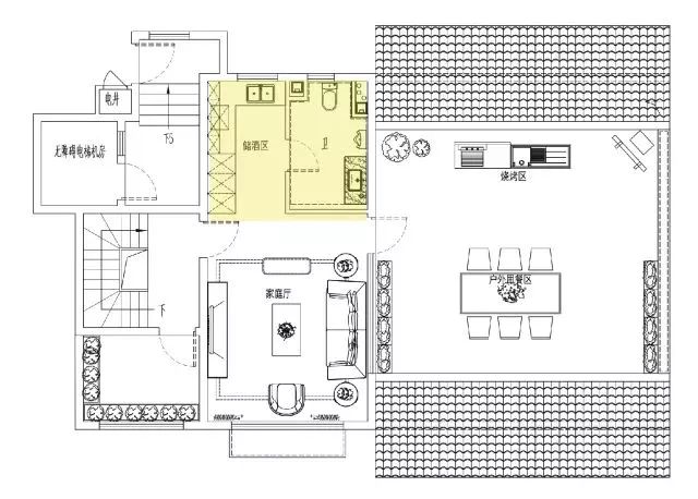
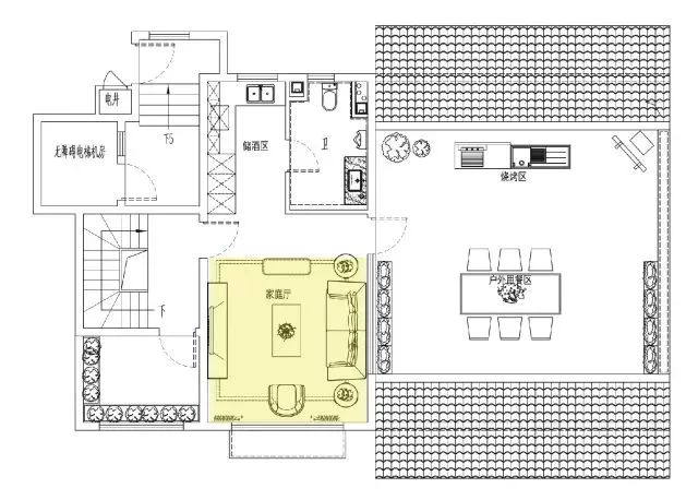
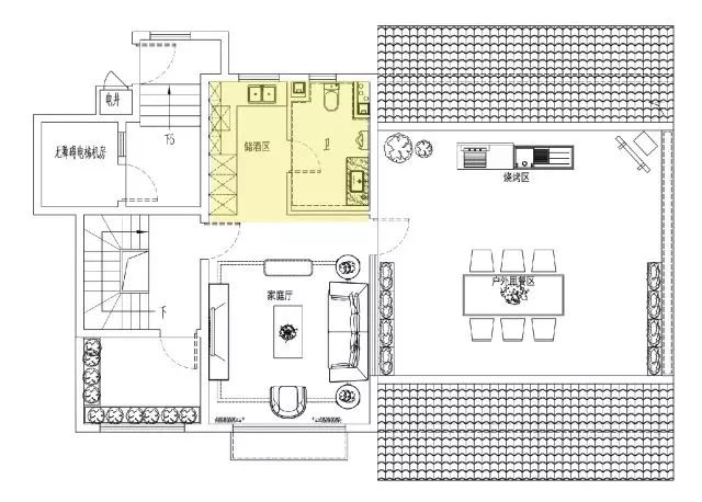
【顶复二层3D户型图】
一层生活,太太的厨房、同堂的欢愉,
一层享受,先生的储酒厅、全家的影音室,
恰到好处的生活空间,
从济州府顶层复式叠墅开始,
邂逅美好的家庭时光,
多一层空间,多一点幸福!
高新区主轴
掌握优势资源
当住房与土地区位优势融合后,
城市主轴区域内的别墅产品、
掌握优势资源的住房将更加突出。
碧桂园·济州府,
坐享济宁高新区发展主轴,
比邻区域科技智慧配套,
以YJ331顶复叠墅产品,
精心缔造济州府居力作,
欣欣向荣的土地
成就匠心传世建筑。
▲示意图
塔尖私藏双层格局
尊享空中墅居生活
【碧桂园济州府】YJ331景林堂,
秉承匠心锻造的理念,
以建面约198-209㎡叠墅产品,
缔造双层“墅居生活”。
在与平层相似的总价区间内,
以休闲露台为特色的立体居住模式,
提供一种截然不同于平层的居住体验,
首层层高约3米,二层层高约3.3米,
为塔尖圈层量身打造央景视界居所。
▲示意图
【顶复一层】
尊崇起居天地
独立电梯入户
私家入户花园尊崇倍至
独立,是一种尊崇的宣言。
济州府秘境叠墅,
以独立电梯入户之尊崇,
呈现礼仪序列感,
赋予居者归家体验。
宽阔入户花园,
于入户门与客厅之间形成过渡,
打造尊崇私密归家礼仪,
草木葱茏的花园,景致缤纷,
每一次归家都是一场穿越花园的旅行。
【顶复一层】图片仅为示意,非交付标准
方正户型 全明采光
动静分离的人性关怀
【碧桂园济州府】YJ331景林堂
以人性化思考,
依据人体工程学原理,
追求精细化设计。
起居空间按照黄金比例进行分割,
以更精确的尺度规划,打造方正户型。
高空间利用率,通风采光俱佳,
格局分明,实现面积的零浪费。
动静分离的科学设计,
以更明晰的功能区域分布,
打造优雅而实用的居住空间。

【顶复一层】图片仅为示意,非交付标准
奢适宽景大开间
全龄家庭四居配备
每一个改善置业的家庭,
都需要有一个懂你需求的大四居。
从二人世界到三世同堂,
父母房、主人房、子女房的规划,
随家庭成长阶段而创变,
给予未来生活更多可能。
张弛有度的主卧套房打造,
恰到好处的人居体验,
兼具身份感与舒适度。
独立卫浴空间的打造,
尽彰菁英人士对高品质生活的追求。

【顶复一层】图片仅为示意,非交付标准
餐客比邻视野阔朗
会友聚餐其乐融融
视野无界,大方之家更具从容,
作为家人最主要的活动场所,
餐客一体化设计为客厅带来更多空间,
让视野于无形中绽放开来,
增加更多公共区域之余,
形成天然的阳光天地。
一步之隔享受美味佳肴,
让生活的互动舒适又讨巧,
为一家人的融情生活创造加倍可能。
【顶复一层】图片仅为示意,非交付标准
【顶复二层】
阔景休闲天地
多功能休闲露台
超大空间趣享人生
阔景露台 境揽峰景,
可自由打造为烧烤区、户外用餐区。
周末,与朋友小聚,
享受一次自助烧烤带来的美食盛宴,
分享惬意时光,让生活,充满欢乐。
大面积空中花园,
随心搭配一草一木,
种下每一天的好心情,
感受清新自然,拥抱健康生活,
独属家人的一方绿色天地。
【顶复二层】图片仅为示意,非交付标准
专属家庭厅打造
承载望族生活情调
作为城市名仕家庭中
短暂的待客空间和社交空间
层高3.3米的家庭厅的存在,
在某种意义上
承载着与家人济济一堂的欢乐,
同时又是主人地位的象征。
【碧桂园济州府】YJ331景林堂,
全方位精细化的家庭厅打造,
南向布局,通风采光,
坐在沙发之上,美景、天际尽收眼底,
闲暇时坐于其中,品茗生活之美,
让身心在华美中靠岸,
人生如此,夫复何求?
【顶复二层】图片仅为示意,非交付标准
私人定制级储酒厅
呈递生活多样情趣
陈年佳酿,酒越酿越香,
一处独立的储酒厅,
隔绝自然光照,
常年保持恒温,
藏纳主人尊崇的“爱酒之情”,
生活情趣之上,
大家风范展露无遗。
【顶复二层】图片仅为示意,非交付标准
因为敬仰所以珍贵
济州门徽主御时代
如今随着济宁城市中心
容积率的不断提高,
土地资源越发的珍贵,
低密大宅的风华,只能怀念,难以追寻,
渐渐成了楼市中的少数。
碧桂园·济州府尊重土地价值,
以YJ331叠墅系列产品,
呈现出更舒适、优雅的居住形态。
尊荣备至的形象,
为品质生活代言。
【碧桂园·济州府】
18# YJ331 建面约149-209㎡全装叠墅
10月1日即将应势加推
全城认筹中!
建面约117-246㎡全装洋房
建面约149-209㎡全装叠墅
品质房源,恭迎品鉴
好房子,自然备受追捧
关注济宁房产、济宁房价、济宁楼盘、济宁住房公积金查询等资讯服务,请持续关注搜狐焦点济宁房产网或济宁房产信息网https://jining.focus.cn/
声明:本文由入驻焦点开放平台的作者撰写,除焦点官方账号外,观点仅代表作者本人,不代表焦点立场。


