太白湖畔居,低密臻洋房!城投绿城湖畔雲庐尽享宽境人生
扫描到手机,新闻随时看
扫一扫,用手机看文章
更加方便分享给朋友
城投绿城·湖畔雲庐

家,既可以是生活,也可以是岁月。
一生时光漫长,从甜蜜的二人世界,到三口之家,再到孩子步入学龄、父母颐养天年,居家需求也在不断更新。

△示意图
随着家庭人口结构的变化,我们对房子的居住要求也变得多样起来,年轻时为了“上车”将就的选择,在踏入人生下一个阶段时,换房迫在眉睫,但换房成本日趋增高,之前的将就往往变成现今的无奈。
我们都希望能够寻找到一个舒适的家,伴随我们渡过人生各个阶段,一起共成长,不用再考虑换房的烦恼与折腾。

△示意图
城投绿城·湖畔雲庐以“全生命周期”先进理念设计住宅,考虑每一个家庭成员的幸福需要,大人小孩各有活动空间,又有相互交集的温馨生活,建筑面积约144㎡大四房,与时光共赏,伴随家庭成长每一步!

湖畔雲庐144平的户型精心设计三开间朝南,约11米奢侈采光面,南北双向观景阳台,大面宽意味着更多的阳光、更好的通风,更佳的居住舒适度。而同时南向3开间意味着家人更多的生活轨迹与阳光重合,充盈在家的每一个角落,当清晨的排名前列缕阳光洒在脸颊,一天的好心情也在此刻被唤醒。

△示意图
方正通透的四房户型设计,整体格局工整美观,每寸空间充分利用,从二胎到三胎时代,满足不同阶段的家庭需求。

餐客厅阳台一体化通透布局,北向生活阳台,南向观景大阳台,一脉贯通,形成南北通厅效果,宽敞明亮,让这里成为居家生活的中轴动线,充分满足主人对社交、聚会、宴客的空间需求。

△示意图
另外,南向阔景阳台更连通次卧,长约7.4M,在这里阳春听风看花,盛夏饮酒烧烤,金秋观景赏月,凛冬品茶看雪,一年四季,四时不同。让生活蕴藏自然美学,尽享宽境人生。

△示意图

南向奢华套房式主卧,自带景观大飘窗,采光极好,园林美景尽收眼底,日沐暖阳夜览群星,独赏四时美景。


△示意图
专属的独立卫浴间,营造出舒阔的洋房生活尺度感。当卸下一天的压力主宰这片属于自己的天地时,把生活装点成自己最理想的样子,在阔大的私属空间里谈天、说地、休憩,任时间流逝,独自逍遥。

独立的书房空间设计,领略书海的浩瀚。这里既是求知的殿堂,又是帷幄的战场。

△示意图
闲暇时,在静谧的书房里,把心沉淀在字里行间。读懂苏轼“也无风雨也无晴”的淡然豁达,亦或是让思绪徜徉在游记里,跟着作者进行一场世界环球之旅,阅遍异域风情文化,让思想自由而开阔。

楼房空间的高低对人的精神影响很大,过低的空间则会产生压抑感。而湖畔雲庐拥有约3.1米的层高,以此通透、朗阔的空间环境,足不出户便将窗外绚丽的景观、灿烂的阳光较大限度地收入囊中。姑且听风吟唱,鸟鸣耳畔,将身心全部交付其中,以开阔的心面对这万般景色。

△示意图
高度决定眼界,眼界决定格局,人生如此,房子亦是如此。湖畔雲庐的奢阔层高将带来自由自在优质舒适的生活体验,重新定义济宁人居新高度。

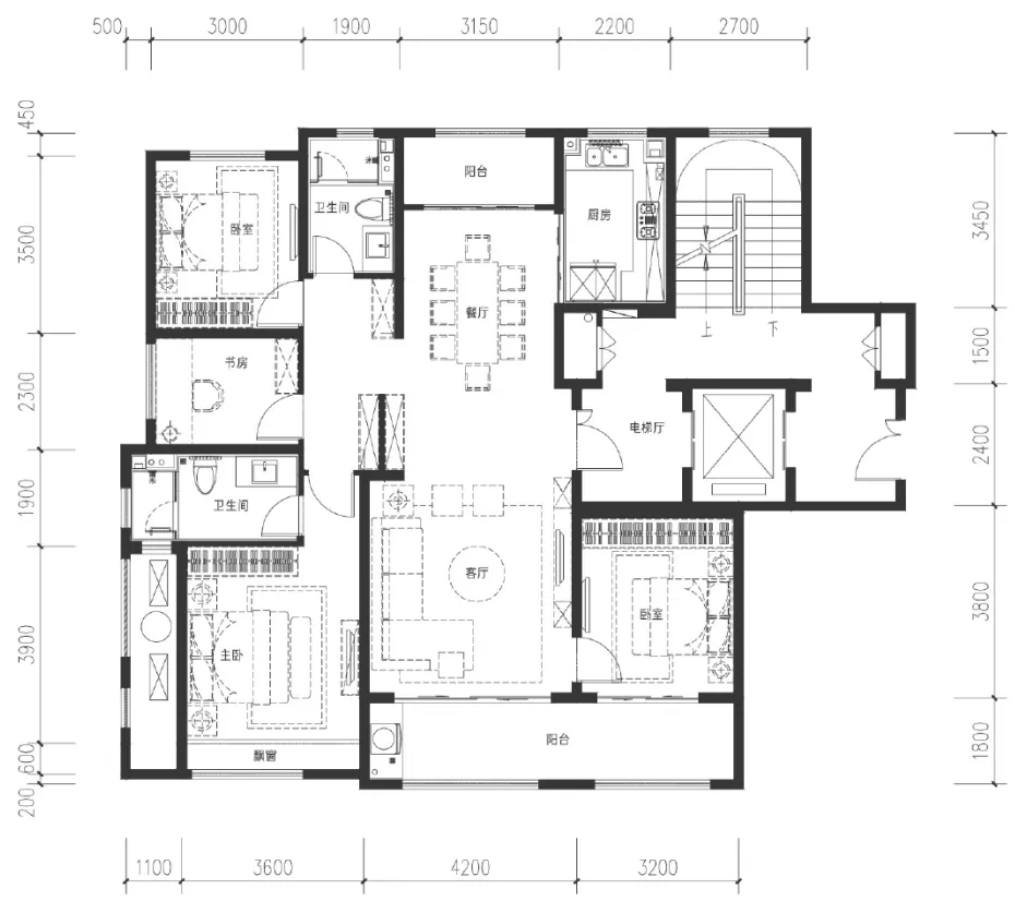
△城投绿城·湖畔雲庐144㎡户型图
城投绿城·湖畔雲庐建筑面积约144㎡改善型洋房,以前瞻性的视野,洞察改善生活需求与痛点。无论是五口之家还是三代同堂,都能够在此安放生活的乐趣,获得品质舒适的生活享受。

△示意图
目前,城投绿城·湖畔雲庐45#载誉加推,全城火热竞藏!

(声明:本文内容来自该项目官方公众平台,本文观点仅代表该项目,不代表搜狐焦点的观点和立场。焦点号系信息发布平台,搜狐焦点仅提供信息存储空间服务。)
声明:本文由入驻焦点开放平台的作者撰写,除焦点官方账号外,观点仅代表作者本人,不代表焦点立场。


