占地89亩,设计居住788户!任城区一商住项目获批
搜狐焦点济宁房产网 2021-11-27 10:20:08
用手机看
扫描到手机,新闻随时看
扫一扫,用手机看文章
更加方便分享给朋友
八里庙三期项目获批!近日,搜狐网·搜狐焦点济宁小编在相关渠道获悉:八里庙片区(三期)建设项目的规划及建筑方案和建设工程规划许可获批前公示,具体参数如下。
八里庙三期项目获批!近日,搜狐网·搜狐焦点济宁小编在相关渠道获悉:八里庙片区(三期)建设项目的规划及建筑方案和建设工程规划许可获批前公示,具体参数如下。

总平面图
工程概况
项目名称:八里庙片区(三期)建设项目
建设单位:山东任城融鑫发展有限公司
项目位置:东邻安顺路,北邻西十二路。
主要技术经济指标
项目规划建设用地面积59106㎡(约89亩);总建筑面积:146871.69㎡;其中地上建筑面积为110965.51㎡、地下建筑面积为35906.18㎡;容积率为2.0;建筑密度25%;绿地率35%;计划居住户(套)数为788户(套),居住人数约2522人(按3.2人/户预算);建筑类型包括住宅、商业、幼儿园、公共配套设施等;规划机动车停车位932个,非机动车位1631个。

技术经济指标

日照分析图

立面图、剖面图

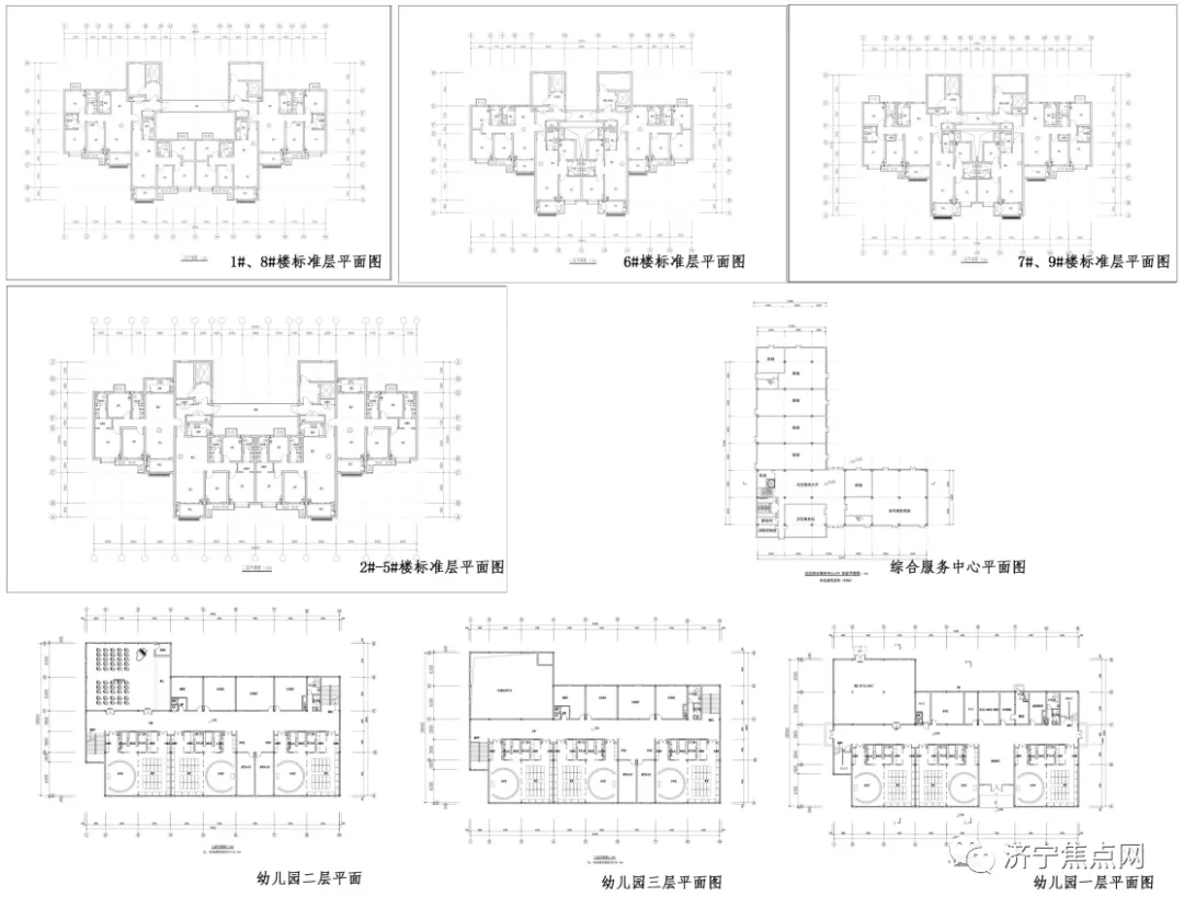
主要平面图

鸟瞰图
责任编辑:刘辉
声明:本文由入驻焦点开放平台的作者撰写,除焦点官方账号外,观点仅代表作者本人,不代表焦点立场。


