占地405亩,设计居住5532户!济宁高新区一棚改回迁项目获批
搜狐焦点济宁房产网 2023-03-22 14:13:20
用手机看
扫描到手机,新闻随时看
扫一扫,用手机看文章
更加方便分享给朋友
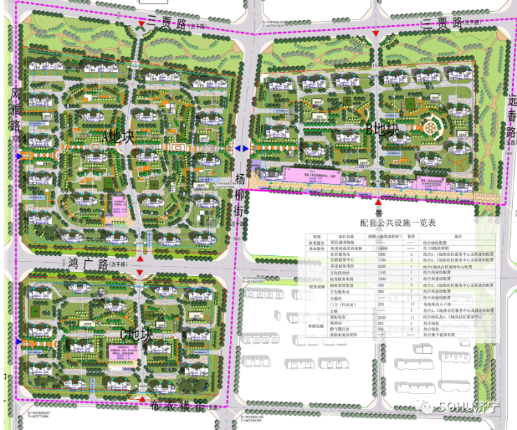
济宁高新区新添一棚改回迁项目!近日,搜狐网济宁小编相关渠道获悉:御水家苑项目的建设工程设计方案获批前公示,具体参数如下。
济宁高新区新添一棚改回迁项目!近日,搜狐网济宁小编相关渠道获悉:御水家苑项目的建设工程设计方案获批前公示,具体参数如下。

总平面图
工程概况
项目名称:济宁高新区接庄街道东贾村、西贾村、中贾村棚户改造项目(御水家苑)
建设单位:接庄街道办事处
项目位置:三贾路以南,风雅路以东,布衣横街以北,远香路以西。
主要技术经济指标
地块规划建设用地面积27.01公顷(约405亩);总建筑面积:883145.5㎡;其中地上建筑面积为653222.1㎡,地下建筑面积229923.4㎡;容积率为2.42;建筑密度17.94%;绿地率38.68%;计划总居住户(套)数为5532户(套),居住人数约17702人(按3.2人/户预算);建筑类型包括住宅、商业、配套设施等;规划机动车停车位5807个,非机动车位6547个。

技术经济指标

日照分析图

鸟瞰图
责任编辑:刘辉
声明:本文由入驻焦点开放平台的作者撰写,除焦点官方账号外,观点仅代表作者本人,不代表焦点立场。


