总投资约20亿元!济宁高新区御水家苑项目一、二标段EPC招标启动
扫描到手机,新闻随时看
扫一扫,用手机看文章
更加方便分享给朋友
近日,搜狐网济宁小编了解到:济宁高新区御水家苑项目一、二标段EPC总承包项目招标公告发布,项目建设地点位于济宁高新区孟子大道南侧、鸿广路北侧区域范围。项目采用EPC总承包模式(设计、施工、采购一体化),设计招标内容对原设计方案进行设计优化完善,同步开展配套工程设计及施工衔接;施工招标内容对剩余部分主体结构土建、装饰、强电、弱电、给排水、消防、空调、通风等内容的施工及安装、调试;采购招标内容对剩余工程所需全部设备、材料的采购、运输、保管及安装。批复(备案)总投资额约20.14亿元,详情如下。
一标段

本招标项目济宁高新区御水家苑项目一标段EPC总承包项目(项目名称)已由山东省投资项目在线审批监管平台(项目审批、核准或备案机关名称)以2601-370890-89-01-169300 (批文编号)批准建设,项目业主为济宁智居开发建设有限公司,建设资金来自企业自筹;已落实(资金来源),项目出资比例为100%,招标人为济宁智居开发建设有限公司。项目已具备招标条件,现对该工程总承包项目进行公开招标。
项目基本信息
项目编号:E3708010374005981001
工程名称:济宁高新区御水家苑项目一标段EPC总承包项目
标段划分: 1
工程概况:济宁高新区御水家苑项目一标段EPC总承包项目,总建筑面积约16.94万㎡,主要包含未施工10栋居民楼及相关配套设施与已封顶7栋楼配套附属工程及相关配套设施,建设标准以26层为主,个别楼层21层或22层,建设工程总价估算:72800.00万元
二标段

本招标项目济宁高新区御水家苑项目二标段EPC总承包项目(项目名称)已由山东投资项目在线监管审批平台(项目审批、核准或备案机关名称)以2601-370890-89-01-169300(批文编号)批准建设,项目业主为济宁智居开发建设有限公司,建设资金来自企业自筹(资金来源),项目出资比例为100%,招标人为济宁智居开发建设有限公司。项目已具备招标条件,现对该工程总承包项目进行公开招标。
项目基本信息
项目编号:E3708010374005981002
工程名称:济宁高新区御水家苑项目二标段EPC总承包项目
标段划分:1
工程概况:本项目为济宁高新区御水家苑项目二标段EPC总承包项目,总建筑面积约15.50万㎡,主要包含未施工9栋居民楼及相关配套设施与已封顶5栋楼配套附属工程及相关配套设施,建设标准以26层为主,个别楼层21层或22层,建设工程总价估算:66700万元。
相关信息
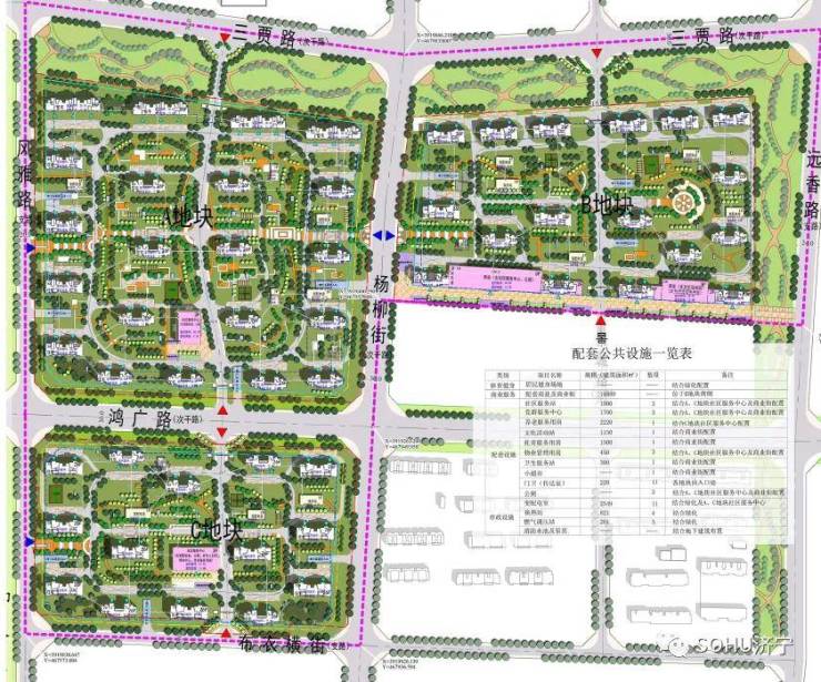
2023年3月22日,搜狐网济宁小编相关渠道获悉:御水家苑项目的建设工程设计方案获批前公示,具体参数如下。
总平面图
工程概况
项目名称:济宁高新区接庄街道东贾村、西贾村、中贾村棚户改造项目(御水家苑)
建设单位:接庄街道办事处
项目位置:三贾路以南,风雅路以东,布衣横街以北,远香路以西。
主要技术经济指标
地块规划建设用地面积27.01公顷(约405亩);总建筑面积:883145.5㎡;其中地上建筑面积为653222.1㎡,地下建筑面积229923.4㎡;容积率为2.42;建筑密度17.94%;绿地率38.68%;计划总居住户(套)数为5532户(套),居住人数约17702人(按3.2人/户预算);建筑类型包括住宅、商业、配套设施等;规划机动车停车位5807个,非机动车位6547个。
技术经济指标
日照分析图
鸟瞰图
【小编聊一聊】
济宁高新区御水家苑一、二标段EPC项目同步启动招标,作为接庄街道东贾、西贾、中贾村棚改安置工程,不仅关系片区群众回迁安居,更是高新区完善南部功能布局、补齐民生配套的关键一步。项目批复备案总投资额约20.14亿元,一、二标段工程估算分别为7.28亿元与6.67亿元,总建筑面积约32.44万平方米,整体规划清晰、标段划分合理,有利于统筹施工、提升效率。
该项目采用EPC总承包模式,将设计、采购、施工一体化实施,有助于减少环节衔接矛盾,统一建设标准,控制项目投资与工期,在棚改项目中具备较强的实操性。项目地处孟子大道与鸿广路之间,区位条件良好,建成后不仅能显著改善回迁群众居住条件,也将完善区域居住配套,提升城市界面与人居环境。
作为重点民生工程,其价值远不止建筑本身。在后续建设中,唯有严格落实备案要求,严把质量安全关口,规范施工管理,才能真正把安居工程落到实处,让群众早日实现安居愿景,也为高新区产城融合发展夯实民生基础。
责任编辑:袁培淞
声明:本文由入驻焦点开放平台的作者撰写,除焦点官方账号外,观点仅代表作者本人,不代表焦点立场。


