设计居住286户!任城区水产路北片区棚改B地块项目获批
搜狐焦点济宁房产网 2020-12-15 08:56:36
用手机看
扫描到手机,新闻随时看
扫一扫,用手机看文章
更加方便分享给朋友
济宁市区一热门棚改项目出规划!近日,搜狐新闻·搜狐焦点济宁小编在相关渠道获悉,水产路北片区棚户区改造项目B地块的建设工程设计方案及规划许可获批前公告,具体参数如下。
济宁市区一热门棚改项目出规划!近日,搜狐新闻·搜狐焦点济宁小编在相关渠道获悉,水产路北片区棚户区改造项目B地块的建设工程设计方案及规划许可获批前公告,具体参数如下。

总平面图
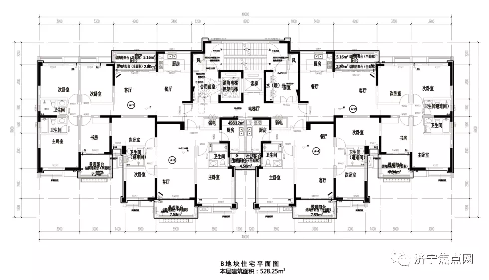
工程概况项目名称:水产路北片区棚户区改造项目B地块建设单位:山东任城融鑫发展有限公司项目位置:太白楼路以南,车站东路以东,水产路以北,龙翔路以西
主要技术经济指标
规划建设用地25972㎡(约39亩);总建筑面积:126152.22㎡;其中地上建筑面积为98332.68㎡、地下建筑面积为27819.54㎡;容积率为3.79;建筑密度39.94%;绿地率35.26%;计划居住户(套)数为286户(套),居住人数约1001人(按3.5人/户预算);建筑类型包括住宅、商业、公共服务设施等;规划机动车停车位650个,非机动车停车位449个。






主要技术经济指标





建筑主要平立剖面图


效果图
责任编辑:刘辉
声明:本文由入驻焦点开放平台的作者撰写,除焦点官方账号外,观点仅代表作者本人,不代表焦点立场。


