占地39亩,设计居住340户!济宁城区一商住项目获批
搜狐焦点济宁房产网 2022-04-04 10:59:50
用手机看
扫描到手机,新闻随时看
扫一扫,用手机看文章
更加方便分享给朋友
济宁城区再添商住项目!近日,搜狐网济宁小编在相关渠道获悉:龙泰城项目的规划及建筑方案获批前公示,具体参数如下。
济宁城区再添商住项目!近日,搜狐网济宁小编在相关渠道获悉:龙泰城项目的规划及建筑方案获批前公示,具体参数如下。

总平面图
工程概况
项目名称:龙泰城
建设单位:济宁九禾泰置业有限公司
项目位置:金宇路以北,古槐路以东,红楠路以南,晨阳西街以西
主要技术经济指标项目规划建设用地面积2.614公顷(约39亩);总建筑面积:74335㎡;其中地上建筑面积为58033㎡、地下建筑面积为16302㎡;容积率为2.2;建筑密度30%;绿地率35%;计划居住户(套)数为340户(套),居住人数约1088人(按3.2人/户预算);建筑类型包括住宅、商业、公共配套设施等;规划机动车停车位419个,非机动车位808个。


技术经济指标


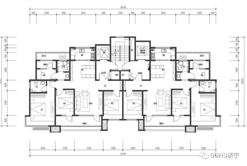
主要平面图、立面图

效果图

鸟瞰图
责任编辑:刘辉
声明:本文由入驻焦点开放平台的作者撰写,除焦点官方账号外,观点仅代表作者本人,不代表焦点立场。


