济州府YJ115户型大揭秘!邂逅洋房里的芳华
扫描到手机,新闻随时看
扫一扫,用手机看文章
更加方便分享给朋友
随着碧桂园·济州府
预约登记活动的正式开始,
来自济宁甚至周边城市的客户
纷纷在各展点与售楼处开启了
激烈的“抢房”大战。
现场人气爆棚,人头攒动,
每一位登记成功的客户脸上
都挂满了期待和喜悦的神情,
这也凸显了广大市民
对济州府的认可和热情。
即日起,购买凤盈安驰的客户,
开盘可尊享3万元优惠!

▲示意图
启幕奢雅洋房 邂逅精英理想生活

选择一处洋房作为首席居所,
是对生活的一种犒赏,
亦是对心中理想的温柔安放。
洋房里的时光,
既吸引着一座城市的名流逸仕,
又为都市生活的奢与雅代言。

▲示意图
碧桂园·济州府YJ115户型华林堂,
奢阔金装三房,至甄匠心,
在功能齐全的前提下,
有效完成各部分的面积配比,
使面积优势得到了最充分的发挥。
气派的大客厅,舒适温馨的餐厅,
不再狭窄的厨房和卫生间,
告别了小房间带给人的拥挤局促感,
无不显示一派豪气,
许你洋房里的世代芳华。

▲示意图
方寸走心空间 一份走心望族犒赏

建面约123㎡ 三室两厅两卫
走「心」布局
南北通透全明设计 安放全家的舒适
图片仅为示意,非交付标准





YJ115户型以方正的户型格局
呈现优雅舒适的居住空间
南北通透的生活体验
是碧桂园·济州府打造的真正意义的全明户型
让阳光360度无死角
动静分区的合理设计
住户均可按照居住需求打造各区域功能
全方位满足一个家庭
在全生命周期内的不同居住需求
从幼到老全龄化关怀,给家人更舒适的享受
这在济宁整个房地产市场上都属于较为罕见的
足以堪称三房界的“神级户型”

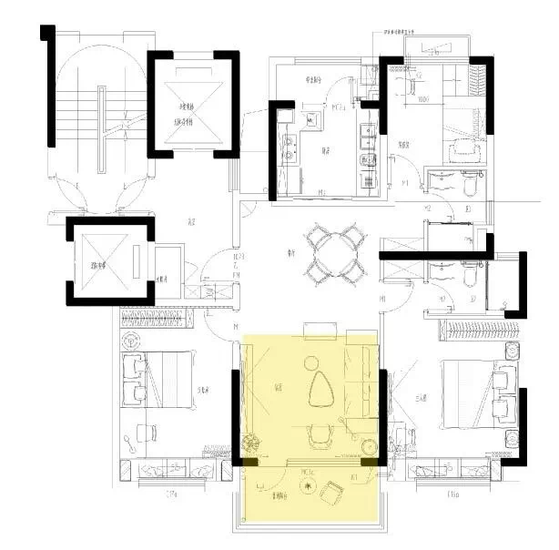
走「心」客厅、阳台
奢阔大气布局 休闲待客从容不迫
图片仅为示意,非交付标准





为了打造更加舒适的居住体验
在空间感的设计上
碧桂园·济州府YJ115户型
以大开间的客厅彰显生活之道
在午后的时间,或窝在沙发中
或席地而坐,与客人品一杯清茗
大家谈天说地其乐融融
客厅连通观景阳台,清风与美景登堂入室
让舒适如影随形,空间利用随心所欲

走「心」尊崇
双南向阳光卧室 尊贵主卧套房
图片仅为示意,非交付标准





主卧、次卧全南向布局
配备全景飘窗,恣意享受阳光的洗礼
清晨,被排名前列缕阳光唤醒
午后,任由徐徐清风拂面
夜晚,在带着阳光味道的被子里好眠
感受清新空气的全天候光顾
主卧大套房,可以说是整套房子设计中
集高贵、私密、舒适性于一体的完备空间
独立明亮卫生间,让忙碌归家的居者
来一个私密高雅的香氛浴,缓解一身疲惫

走「心」关照
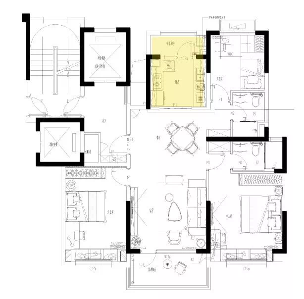
明厨空间烹饪美好 生活阳台藏纳美好
图片仅为示意,非交付标准





全明厨房设计,让美食与美景优雅相遇
享受烹饪的静好时光
厨房连通生活阳台
为家庭提供恰到好处的收纳空间
从容的家政空间,遇见生活的井然有序
厨房设计严格遵照人体工程学原理
小幅侧身移动即可完成烹饪工作
为美食爱好者相对降低1/3的
劳动强度及时间消耗

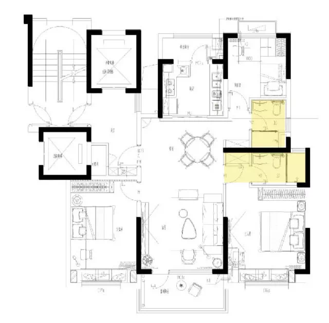
走「心」优雅
奢享全明卫浴 干湿分离舒爽居家
图片仅为示意,非交付标准




全明卫生间的打造
令洗漱时光不再暗无天日
合理的采光通风让居家空间更加整洁舒爽
淋浴区独立设计,保持沐浴之外的场地干燥卫生
再也不用担心洗澡后水花乱溅
造成地面积水、容易摔倒
家里的老人、小孩或孕妇使用时更安全
减少细菌霉菌的滋生
给您一个健康舒适的卫浴环境
看完以上的内容,您是否对济宁的城建、济宁房地产较新进展有了一定的了解呢?如果您感兴趣,可以持续关注济宁搜狐焦点房产信息网,搜狐焦点济宁,我们将不断为大家奉上较新的消息,济宁房产、济宁新房、济宁楼盘、济宁房价我们应有尽有!买房上焦点,精准推荐,全面且省钱!https://jining.focus.cn/
声明:本文由入驻焦点开放平台的作者撰写,除焦点官方账号外,观点仅代表作者本人,不代表焦点立场。


