代言城市理想!济宁鱼台通宝璞樾大观树立人居新高度
扫描到手机,新闻随时看
扫一扫,用手机看文章
更加方便分享给朋友
【通宝·璞樾大观】
通宝·璞樾大观
随着鱼台“西拓南移”的深入推进
西南板块正逐渐成为
鱼台发展的新引擎
凭借10载深耕鱼台的经验
通宝地产携璞樾大观
为鱼台人居品质树立了新的标杆
*实景图
鉴赏品质人居 臻藏理想生活
再起城市中芯
鱼台人居品质跃级
城市的每一次外延,都将奠定一个新价值中心;政策的每一次利好,都是可贵的置业先机。城市发展从中心向外侧延伸,而鱼台老城区的发展已趋近饱和,配套资源、经济产业以及人口在逐步外溢。
城市西拓南移组团接棒鱼台城市中心板块发展,于城市发展主轴之上规划落定一一鱼台美好花园城市示范区,聚焦多重规划背书,屹立时代风口。集文教中芯、商业中芯、文娱中芯贤集。美好花园城市示范新区尤其是城芯区域,蕴含着鱼台新中心的潜力与生命力,成为不少置业者心中的宝藏地段。
*区位图
起步即圈层
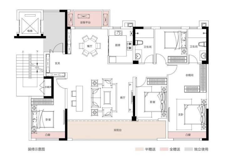
空间百变 更高得房率
璞樾大观主推建面约126-225㎡改善户型,打造联排院墅、宽境洋房、奢阔高层,从产品设计之初就保证了圈层的纯粹性,更有独立电梯厅彰显身份。
不仅如此,通宝地产精研细节,充分使用每一处空间格局,打造利用率高、飘窗赠送面积多,套内实用面积远超市面上同级产品,实现了更高使用面积的高定奢宅。
*示意图
135㎡宽景观邸·雲澜
以135㎡户型为例,由中式传统住宅“合院”形态演变而来的空间布局,呈现圈层家族的跨阶享受。
*135㎡户型图
正房、耳房、东西厢房分布全屋三个角落,不仅没有多余的过道浪费,而且互不打扰,私密性极强,体现了长幼有序的东方居住哲学,非常适合多代家族共同居住。
“合院”布局重视边界感的同时,又有LDK餐客厨一体化南厅串联起无数动人的家庭温馨场景。搭配约7.6米双面宽大阳台,大大增加视野开阔感和采光通风。
142㎡宽景观邸·雲峯
142㎡四房户型同样备受青睐。三瞰景南向卧室,拥揽四季风光与暖阳,给三代人同等厚爱。约5.4m大面宽横厅,无论是家族会宴或是招待友朋都能面面俱到。
*142㎡户型图
并且,空间设计上更是做到了近似五面宽朝南的设计,较大化保证了采光和通透。多余的一个面宽空间,不仅可以融合打造奢阔大横厅,还可以打造独立家政间,多余的房间可以打造成儿童乐园、宠物栖息地、书房、健身房等。
162㎡花园洋房·宸院
城南新区品质大盘凤毛麟角,低密洋房更是稀缺。所以,通宝地产也带来了改善圈层最想要的答案,约162㎡宽幕洋房。
*162㎡户型图
更低容积率的“真”洋房 ,颠覆传统核心区生活想象。更宽松的楼间距、更通透的采光通风、更高的人均资源占有和更高的得房率。
*效果图
大面宽、短进深。真正的南向五开间设计,约16.2米超大面宽,南北通透。 不仅延伸了室内的空间感,且通透性、互动性更强,真正意义上做到了室内外的无边界。让整体的自由性和可改造性更强,使得家庭公区聚合成为一个完整的互动场。
*示意图
少承重墙的设计,户型空间可塑性极强,三房/四房/五房随心改造, 打造适合全家人的空间功能,自由切换生活场景。
*示意图
兼具颜值与品质的高配社区
升维高阶圈层的仪式感
除了卷出新高度的户型,通宝·璞樾大观还全维升级了建筑立面、园林景观和公区配置,让业主拥有高阶奢宅般的获得感和尊崇感。
灰咖色真石漆与米白色多彩漆组合,搭配现代艺术线条勾勒出“简约精奢立面”,加上大面宽LOW-E玻璃,使得室内与室外的景观融合最大化。

*效果图
撷取宋词《珍珠帘》风雅意境,打造“珠园玉境”主题园林。彰显通宝别样的生活美学。从云屏礼制大门到酒店式归家大堂,26000㎡诗意自然,营造步步皆景的“五维景观、三进礼制”社区。
*实景图
矜贵铺陈花园式会客厅,闲时约三两友邻品茗对弈,畅谈家国,酝酿生活的烟火气;“璞金浑玉天成园,樾木成荫大观境”,低密园境绿树成荫,可于慵懒午后,寻一处绿荫静心阅读,漫享时光;精心打造森系儿童乐园,认知植物,亲近自然,悦享成长的烂漫时光。
*儿童示范区实景图
超1000平璞樾健身会所,设施齐全,配备专业私教,跑步骑车、瑜伽举重……在家楼下随时开启运动模式。
*健身会所实景图
明亮阔绰的入户休憩区、电梯厅等无不彰显通宝的高定用材细节;智能化公区、12345物业焕新服务,更是通宝引领高阶生活方式的象征。
*实景图
在高级烟火气与自然之间从容往返,这才是高阶圈层想要的闲适生活。
核心地段、稀缺配套、高得房率、百变户型、高标配置……深耕鱼台十余载的通宝,匠心再呈,大有可观!
以尊荣姿态领衔高光土地
通宝将定义人居新标准!
建面约200-225㎡城市公园墅
建面约162㎡花园洋房
建面约126-142㎡宽景小高
首付仅需10万起,敬请从速争藏
(声明:本文内容来自该项目官方公众平台,转载目的在于传递更多公益服务信息,本文内容(包括不限于文字、图片、字体、视频等)版权归源媒体、平台、作者所有,并不代表本网赞同其观点和对其真实性负责。任何单位或个人认为本网站的内容可能涉嫌侵犯其合法权益,应及时向本网站反馈,并提供相关证明材料和理由,本网站在收到上述文件并审核后,会第一时间采取相应处理措施。焦点号系信息发布平台,搜狐焦点仅提供信息存储空间服务。)
声明:本文由入驻焦点开放平台的作者撰写,除焦点官方账号外,观点仅代表作者本人,不代表焦点立场。


